Project Type: competition
Project Period: Oct 2022 ~ Dec 2022
Building Type: Educational Research Facilities(Educational training institute)
Location: Cheongju, Korea
Building Area: 1,881.80㎡
Total Floor Area: plan : 2,131.69㎡, total : 5,561.72㎡
Participant: Ohseong Kwon
프로젝트유형: 국내건축공모전
프로젝트기간: 2022년 10월~2022년 12월
건물유형: 교육연구시설(교육원)
위치: 한국 청주시
건축면적: 1,881.80㎡
총연면적: 계획 : 2,131.69㎡, 전체 : 5,561.72㎡
참가자: 권오성









The Intangible Cultural Heritage Training Center is a space for experiencing traditional art in Cheongju and transferring knowledge.
It consists of a space where practical creative and cultural activities take place and an office space to preserve and display the works and products of intangible cultural properties. The training center is directly adjacent to the craft workshop street of the New Deal Urban Regeneration Project for the mz generation and it was conceived as an extension of the planned Deokbeol Sharing Hub Center.
Taking advantage of these opportunities was one of the main focus of the design. We connected to a walking network to respect the individuality of the three elements and to integrate them spatially. In addition, we planned an additional new architectural garden to be the central space covering all buildings in the open landscaping space.
Space naturally linked to the slope and movement of the central garden
The Sunken Garden in the center allows natural lighting, allowing access to the outside at the same time.
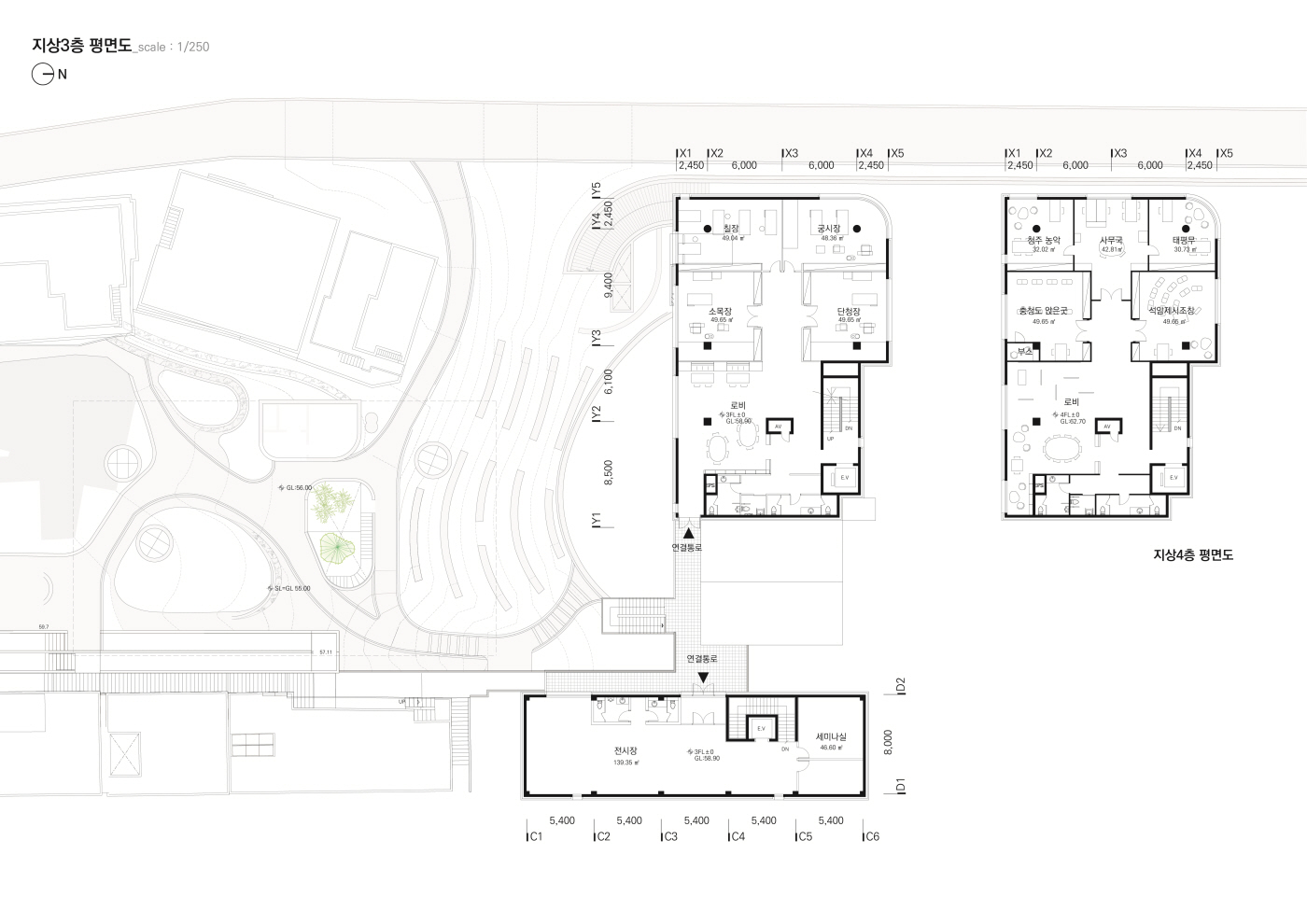
The exhibition hall designed the southern part as a piloti, allowing people to naturally access the central garden and the circulation movement of the complex.
Space linked to the overall experience path of the complex
The core part connected to the underground protrudes to the ground, enabling a natural and attractive approach from the promenade in the central garden. The second floor above ground was connected to the passageway leading to the workshop street and the Sharing Hub Center so that it could be linked to the overall experience of the complex. The third floor is connected to the promenade through a copper wire connected to the outside.
Symbolic formality combined with existing buildings
It was intended to harmonize with the practical characteristics of the urban context through neat and solid architectural expression. The training center harmonizes with the Deokbeol Sharing Hub Center in terms of materials and volume.
The exhibition space in the middle of the three programs was planned with a serrated roof to increase awareness on the airport road and it can be a sign of the craft workshop street or a sign of the Sharing Hub Center.
무형문화재 전수교육관은 청주의 전통예술의 체험과 지식의 전수를 위한 공간이다.
청주시 무형문화재의 작품과 산물을 보전하고 전시하기 위하여 사무공간과 실질적인 창작문화 활동이 동시에 이뤄지는 공간으로 이루어져 있다. 전수교육관은 mz세대를 대상으로 하는 뉴딜도시재생사업의 공예공방거리와 바로 인접해있으며, 계획되어 있던 덕벌나눔허브센터의 증축으로 구상되었다. 이러한 공간적, 기능적 근접성으로 인해 공예공방거리, 덕벌나눔허브센터 그리고 무형문화재 전수교육관 이 세가지 주체 사이에는 강력한 시너지가 일어날 가능성을 가지고 있다.
이러한 기회를 활용하는 것이 설계의 주된 주안점 중 하나였다. 세가지 요소의 개성을 존중하면서 공간적으로 통합하기 위해 산책 네트워크로 연결하였다. 또한 열려있는 조경 공간에 모든 건물을 아우르는 중심 공간이 되는 새로운 건축적 정원을 추가적으로 계획하였다.
중앙정원의 경사와 동선에 자연스럽게 연계되는 공간
중앙에 있는 썬큰 정원은 자연 채광을 가능하게 하여 동시에 외부로 출입을 가능하게 한다.
전시장은 남측부를 필로티로 하여 중앙 정원과 단지 순환 동선에 자연스럽게 사람들의 접근이 가능하도록 하였다.
단지의 전체적인 경험 경로에 연계되는 공간
지하와 연결되는 코어부는 지상으로 돌출되어 중앙정원의 산책가로에서 자연스럽고 매력적인 접근을 가능하게 한다. 지상2층은 공방거리와 나눔허브센터로 이어지는 통로와 연결되어 단지의 전체적인 경험에 연계되도록 하였다. 3층은 외부로 연결되는 동선을 통해 단지 산책로와 연결되어 있다.
기존 건물군과 결합하는 상징적 조형성
단정하면서 견고한 건축적 표현을 통해 도시 맥락의 실용적 특성과 조화를 이루고자 하였다.
전수교육관은 덕벌나눔허브센터와 재료와 부피감에서 조화를 이룬다.
세 가지 프로그램의 가운데에 있는 전시공간은 톱니형태의 지붕으로 계획하여 공항로에서 인지성을 높였으며, 공예공방거리의 간판이 될 수도 있고 나눔허브센터의 간판이 될 수도 있도록 하였다.